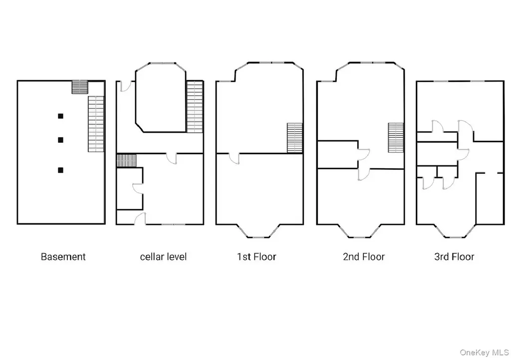
Classic Brownstone Townhouse in Bedford- Stuyvesant. Property is currently configured as a 1 family with 6 bedrooms and 3 bathrooms. This property needs some TLC but great upside and lots of opportunity. Property has four stories, with a basement. Building is 16 X 45, on a 16 x 63 lot. Great location, close to transportation, stores, etc. Basement: boiler, hit water tank. High ceiling. Gound level: living room, dining, kitchen, bath Parlor level: 2 bedrooms, pocket door, high ceiling. Second floor: full bathroom, 2 bedrooms Third floor: 1 bdrm, bath , kitchen

Listing Tools

Property Details of 113 Halsey Street, Bedford-Stuyvesant

Property Details

Interior Features

Community

Map Location

Listings courtesy of OneKey® MLS as distributed by MLS GRID. Based on information submitted to the MLS GRID as of November 13, 2025 9:55 AM EST. All data is obtained from various sources and may not have been verified by broker or MLS GRID. Supplied Open House Information is subject to change without notice. All information should be independently reviewed and verified for accuracy. Properties may or may not be listed by the office/agent presenting the information. IDX information is provided exclusively for consumers’ personal noncommercial use and may not be used for any purpose other than to identify prospective properties consumers may be interested in purchasing. The data is deemed reliable but is not guaranteed by MLS GRID. The use of the MLS GRID Data may be subject to an end user license agreement.

Hi there! How can we help you?

Contact us using the form below or give us a call.

Send Us A Message:

Do not fill in this field:

This site is protected by reCAPTCHA and the Google Privacy Policy and Terms of Service apply.

Hi there! How can we help you?

Contact us using the form below or give us a call.

Send Us A Message:

Do not fill in this field:

This site is protected by reCAPTCHA and the Google Privacy Policy and Terms of Service apply.

Hi there! How can we help you?

Contact us using the form below or give us a call.

Send Us A Message:

Do not fill in this field:

This site is protected by reCAPTCHA and the Google Privacy Policy and Terms of Service apply.

Do not fill in this field:

This site is protected by reCAPTCHA and the Google Privacy Policy and Terms of Service apply.

Do not fill in this field:

This site is protected by reCAPTCHA and the Google Privacy Policy and Terms of Service apply.

Do not fill in this field:

This site is protected by reCAPTCHA and the Google Privacy Policy and Terms of Service apply.

$

Do not fill in this field:

This site is protected by reCAPTCHA and the Google Privacy Policy and Terms of Service apply.