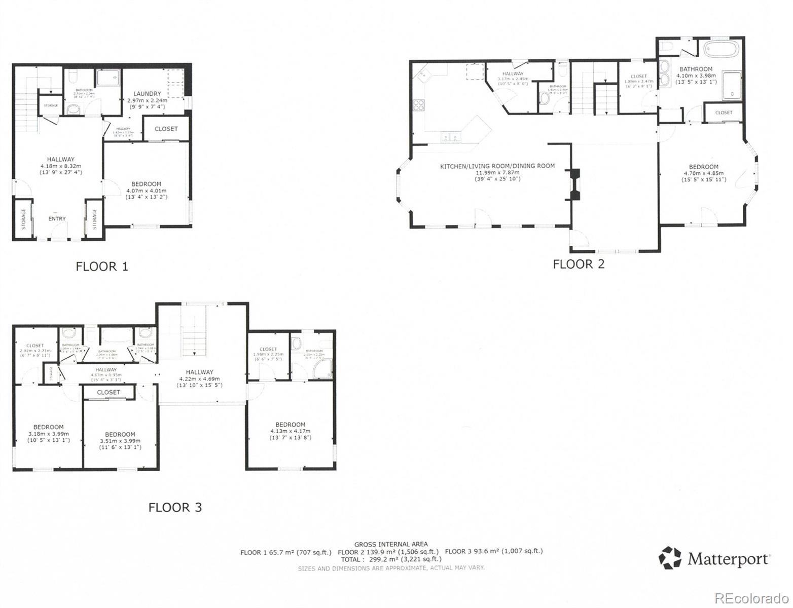
Welcome to this bolstering and secluded mountain escape, featuring fresh interior & exterior paint/stain, new carpet, a partially updated kitchen, updated Primary Bathroom, & new composite decking with metal rails. Despite its size, this home exemplifies a warm touch with ambient lighting & a double-sided fireplace. Through the front door lies a freshly tiled foyer/mudroom perfect for the inclement and muddy days. Attached to the foyer is the garage/utility room, a bedroom, a 3/4 bath, & a practical laundry room. The primary bedroom is complete with a walk-in & standard closet offering immediate deck access that is pre-wired & structurally sound for a hot tub. Connected to this bedroom is a spacious and lush 5-piece bathroom highlighted by its stand-alone tub, overt shower, and double sinks. The kitchen freshly comes with updated countertops, new refrigerator, oven, microwave & dishwasher. The attached walk-in pantry provides DBL Ovens with backyard access. Additionally, the main floor gloats its family room with a magnificent ceiling that is overlooked by the 3rd-story loft. The excitement extends upstairs to the loft, 1 guest bedroom with 3/4 bath, & 2 additional bedrooms adjacent to the Jack & Jill bathroom. The property boasts its views, stunning professional landscaping, extensive space/exterior storage, & usable land. Featuring an Astro-turfed yard with a breathtaking waterfall-fed pond & perennial flower garden, this property is perfect for gatherings & spending free time under the sun. The 2 covered sheds & Morton Pole Barn with 2 stalls add substantial storage for personal property and toys. In the nature of self-sufficiency, the property is equipped with a chicken coop & ample grazing room for small livestock. All this is conveniently located near hiking & biking trails, fishing, mountain communities & easy access to HWY285 for commuting to Denver! For those seeking a private and sweeping mountain residence, look no further and schedule a showing today.

Listing Tools

Property Details of 318 Road D

Property Details

Interior Features

Exterior Features

Utilities and Appliances

Community

Map Location

The content relating to real estate for sale in this Web site comes in part from the Internet Data eXchange (“IDX”) program of METROLIST, INC., DBA RECOLORADO® Real estate listings held by brokers other than Amo Realty Inc. are marked with the IDX Logo. This information is being provided for the consumers’ personal, non-commercial use and may not be used for any other purpose. All information subject to change and should be independently verified.

This publication is designed to provide information with regard to the subject matter covered. It is displayed with the understanding that the publisher and authors are not engaged in rendering real estate, legal, accounting, tax, or other professional services and that the publisher and authors are not offering such advice in this publication. If real estate, legal, or other expert assistance is required, the services of a competent, professional person should be sought.

The information contained in this publication is subject to change without notice. METROLIST, INC., DBA RECOLORADO MAKES NO WARRANTY OF ANY KIND WITH REGARD TO THIS MATERIAL, INCLUDING, BUT NOT LIMITED TO, THE IMPLIED WARRANTIES OF MERCHANTABILITY AND FITNESS FOR A PARTICULAR PURPOSE. METROLIST, INC., DBA RECOLORADO SHALL NOT BE LIABLE FOR ERRORS CONTAINED HEREIN OR FOR ANY DAMAGES IN CONNECTION WITH THE FURNISHING, PERFORMANCE, OR USE OF THIS MATERIAL.

All real estate advertised herein is subject to the Federal Fair Housing Act and the Colorado Fair Housing Act, which Acts make it illegal to make or publish any advertisement that indicates any preference, limitation, or discrimination based on race, color, religion, sex, handicap, familial status, or national origin.

METROLIST, INC., DBA RECOLORADO will not knowingly accept any advertising for real estate that is in violation of the law. All persons are hereby informed that all dwellings advertised are available on an equal opportunity basis.

©2025 METROLIST, INC., DBA RECOLORADO® – All Rights Reserved 6455 S. Yosemite St., Suite 300 Greenwood Village, CO 80111 USA

ALL RIGHTS RESERVED WORLDWIDE. No part of this publication may be reproduced, adapted, translated, stored in a retrieval system or transmitted in any form or by any means, electronic, mechanical, photocopying, recording, or otherwise, without the prior written permission of the publisher. The information contained herein including but not limited to all text, photographs, digital images, virtual tours, may be seeded and monitored for protection and tracking.

Hi there! How can we help you?

Contact us using the form below or give us a call.

Send Us A Message:

Do not fill in this field:

This site is protected by reCAPTCHA and the Google Privacy Policy and Terms of Service apply.

Hi there! How can we help you?

Contact us using the form below or give us a call.

Send Us A Message:

Do not fill in this field:

This site is protected by reCAPTCHA and the Google Privacy Policy and Terms of Service apply.

Hi there! How can we help you?

Contact us using the form below or give us a call.

Send Us A Message:

Do not fill in this field:

This site is protected by reCAPTCHA and the Google Privacy Policy and Terms of Service apply.

Do not fill in this field:

This site is protected by reCAPTCHA and the Google Privacy Policy and Terms of Service apply.

Do not fill in this field:

This site is protected by reCAPTCHA and the Google Privacy Policy and Terms of Service apply.

Do not fill in this field:

This site is protected by reCAPTCHA and the Google Privacy Policy and Terms of Service apply.

$

Do not fill in this field:

This site is protected by reCAPTCHA and the Google Privacy Policy and Terms of Service apply.